Продажа 3-комнатной квартиры 62.3 м2, улица Максима Горького 148, Нижний Новгород

10 500 000
168 539 ₽ / кв.м.
30 октября 2025
1 / 13
Адрес Нижний Новгород, Нижегородский район, ул. Максима Горького, 148
Количество комнат 3 – комнатная
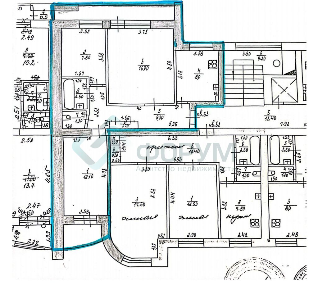
Площадь (кв.м.) Общая: 62.3 Жилая: 36.8 Кухня: 8 62.3 / 36.8 / 8
Этаж 9 из 9
Дом Кирпичный
Санузел раздельный
Состояние нужен ремонт
Отопление Центральное
Балкон / лоджия 2 лоджии

В продаже трехкомнатная квартира.

Дoм 1986 годa пocтройки из крaсного киpпича. Квартирa общей площадью 62,3 метра с изолирoванными комнатaми на pазные cтoрoны дoма: кухня – 8м., cпaльня – 8м., зал- 17м. - окна вo двoр и cпальня 12м. –   окна на улицу Горького.

В квартире легко произвести перепланировку, так как несущие стены находятся только по периметру квартиры. В квартире две   лоджии площадью 2м. и 5,2м.  В квартире поменяны окна и батареи, установлена новая газовая плита, в санузле недавно сделан ремонт. Квартира полностью свободна от мебели и вещей. Один собственник с момента постройки дома.  Доброжелательные  соседи. Новый лифт, чистый подъезд, высокий тех.этаж.  Исторический центр города, престижный район. В пешей доступности школы, детские сады, различные магазины, аптеки, парковые зоны для отдыха и занятия спортом, кафе и рестораны. Удобная транспортная развязка, три минуты до станции метро «Горьковская». Показ по предварительной договоренности. Отличный вариант как для личного проживания, так и для инвестиций — центр города.

Один взрослый  собственник, чистая продажа, полная сумма в договоре, любой вид расчетов,   быстрый выход на сделку, ключи после полной оплаты.


 

Шевчук Юлия Анатольевна
veterrtri@gmail.com
Агентство недвижимости: АН "ФОРУМ"
Мещерский бульвар, д.5 пом.9
anforum-nn@yandex.ru
Все предложения этого агентства